2階にキッチン設置可能なインフラ配管が布設済みなので、2世帯住宅として活用が可能です。カーポートも4台分。もちろん大家族1世帯でのお暮らしもバッチリです。お買物・学校・役所と、周辺環境も良いです。
【価格】
1490万円
【所在地】
岩手県奥州市江刺栄町1-12
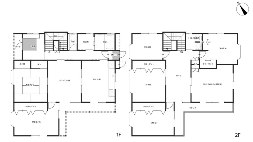
【建物】
間取り/8DK
構造/木造
面積/197.06㎡ 約59坪
新築/2002年11月
【土地】
地目/宅地 面積/353.68㎡ 約108坪
【マップ】
【周辺環境】
[銀行] 水沢信用金庫江刺支店まで407m
[銀行] 北日本銀行江刺支店まで485m
[幼稚園、保育園] 聖愛ベビーホームまで833m
[販売店] Seria生活良品奥州江刺店まで724m
[郵便局] 江刺郵便局まで913m
[コンビニ] セブンイレブン奥州江刺南大通り店まで946m
[中学校] 奥州市立江刺第一中学校まで1,779m
[小学校] 奥州市立岩谷堂小学校まで1,689m
【詳細】
接道/北東4.6m 公道 接面28.5m
区域区分/非線引き区域
用途指定/第一種住居地域 建ぺい率60% 容積率200%
給水設備/接続済。
排水設備/接続済。
現況渡しとなります。
取引態様/媒介
仲介手数料/売買代金の3%+6万円(税別)
HOUSE 媒介物件
【ご成約済】売物件 江刺栄町 7LDK
- 更新日
- 2025.10.29 Wed
- 取引態様
- 媒介
- 価格
- 1490万円
- 所在地
- 岩手県奥州市江刺栄町1-12
- 学区
- 奥州市立岩谷堂小学校



