お求めやすく価格改定いたしました。
2025年5月にリフォーム済み。3台分駐車可能です。閑静な住宅街に位置しており、ゆとりのある住宅になっております。和室と洋室が両方あり、落ち着いた雰囲気です。胆沢第一小学区。
【価格】
1390万円
【所在地】
奥州市胆沢小山字下笹森136-40
【建物】
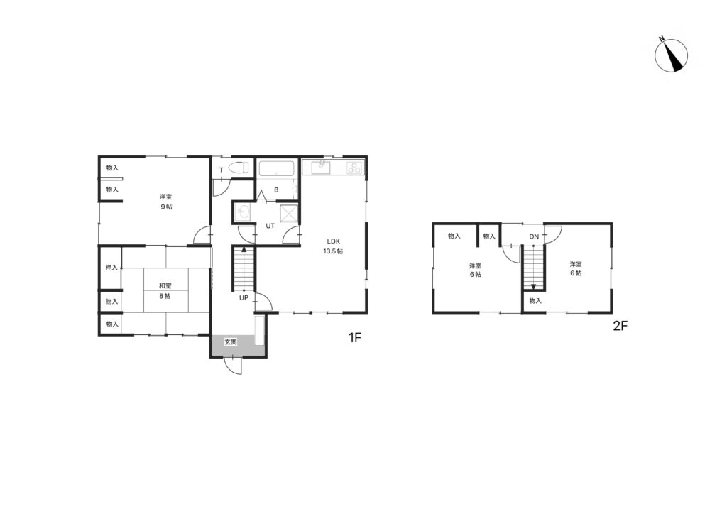
間取り/4LDK
構造/木造
面積/303.51㎡ (約91坪)
新築/1974年05月
【土地】
地目/宅地 面積/167.79㎡(約50坪)
【マップ】
【周辺環境】
[販売店] クスリのアオキ川端店まで210m
[コンビニ] セブンイレブン奥州水沢川端店まで307m
[販売店] コメリハード&グリーン水沢大鐘店まで756m
[病院] 岩手県立胆沢病院まで528m
[コンビニ] ニューヤマザキデイリーストア胆沢病院店まで683m
[幼稚園、保育園] 認定こども園こばとこども園まで838m
[小学校] 奥州市立水沢南小学校まで971m
[中学校] 奥州市立水沢南中学校まで1,612m
【設備】
オートバス 追焚機能 温水洗浄便座 3口以上コンロ システムキッチン クローゼット プロパンガス モニタ付インターホン 火災警報器(報知機) 庭
【リフォーム履歴】
■水回り:2025年05月 キッチン 浴室 トイレ 洗面所 給排水管 給湯器
■内装:2025年05月 全室クロス張替え 床(フローリング等) 壁・天井(クロス・塗装等) 建具(室内ドア等) サッシ
■外装:2025年05月 外壁 屋根
■その他:2025年05月 ブロック塀補強・駐車スペース砂利敷き
【リノベーション履歴】
2025年05月 内容:梁・柱補強
【詳細】
接道/角地:南東4.0m 公道 接面18.0m
区域区分/非線引区域
用途指定/無指定 建ぺい率70% 容積率200%
給水設備/引込あり(引込管20mm)
排水設備/引込あり
現況渡しとなります。
【備考】
物置が付属しております。
取引態様/媒介
仲介手数料/代金の3%+6万円(税別)
HOUSE 媒介物件
【ご成約済】売物件 下笹森 リフォーム済一戸建て住宅 4LDK
- 更新日
- 2026.03.31 Tue
- 取引態様
- 媒介
- 価格
- 1390万円
- 所在地
- 奥州市胆沢小山字下笹森136-40



















